Prodaja nekretnina Gorskog kotara

Gorski kotar

Buduća "A frame" kuća!

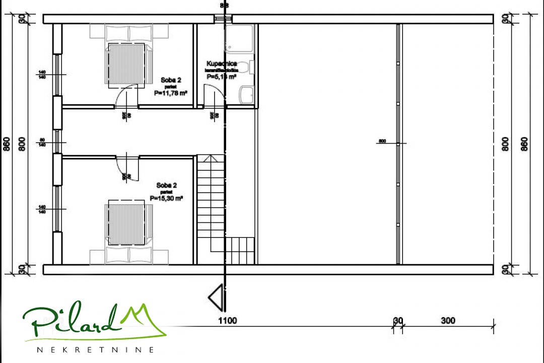
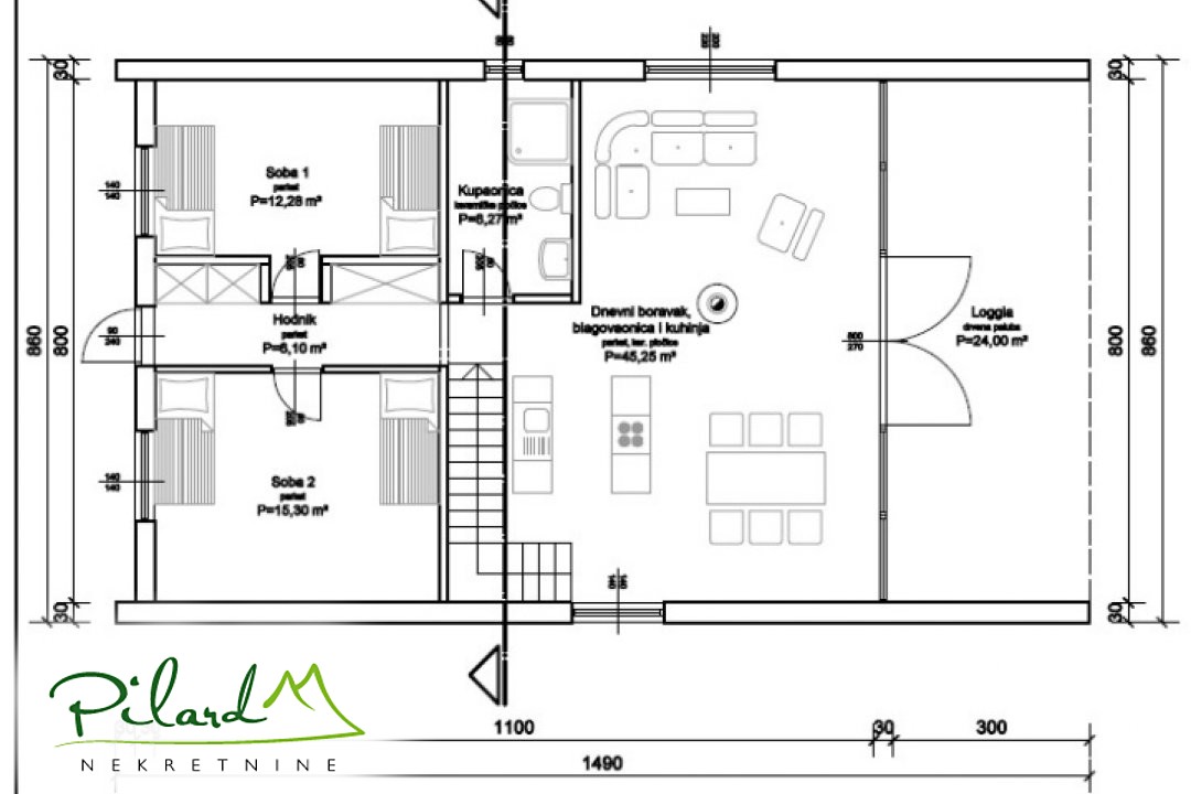
U Vrbovskom, na uzvišenom mjestu iznad ceste, prodaje se građevinsko zemljište ukupne površine 950 m2 sa idejnim projektom za jednoobiteljsku kuću sa pomoćnim objektom. Kuća se sastoji od etaže prizemlja i potkrovlja. U prizemlju je predviđen dnevni boravak sa kuhinjom i blagavaonicom, dvije sobe, kupaonica i hodnik, a u potkrovlju spavaća soba sa kupaonicom. Etaži potkrovlja se pristupa unutarnjim ljestvama. Ulaz na etažu prizemlja omogućen je sa zapadne strane. Maksimalni tlocrtni gabariti zgrade su 8 m × 10 m. Konstrukcija građevine je "A frame" što znači da krovna ploha pokriva građevinu od sljemena do tla.

  • sa pogledom
  • mirno i tiho
  • struja
  • voda
  • blizina sanjkališta
  • blizina planinarskih staza/odredišta

Cijena: 35.000 eura

Oznaka nekretnine: 2190


Upit za nekretninu

 
Slažem se

Ova stranica koristi kolačiće (cookies) za pružanje boljeg korisničkog iskustva, funkcionalnosti i prikaza.
Cookie postavke možete podesiti u vašem web pregledniku. Za nastavak pregleda stranice kliknite "Slažem se".